TYPE
Detached
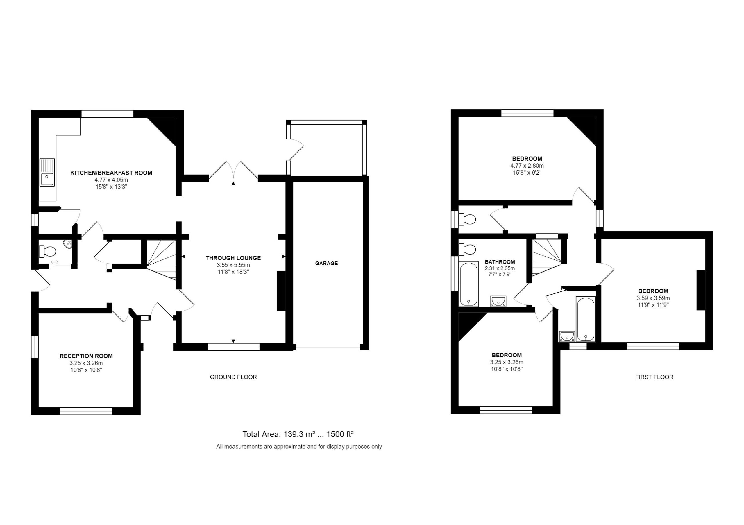
BEDROOMS
x 2
BATHROOMS
x 2
TENURE
Freehold
Property Description
This three-bedroom detached house in need of significant modernisation/redevelopment is situated on a substantial 0.4-acre plot. The property offers buyers a rare opportunity to either completely modernize the existing dwelling or redevelop the site subject to the relevant consents. With a plot width of 24m (79ft) wide approximately, the site could allow for the construction of two semi-detached homes making this property an ideal investment opportunity.
The property is set back from the road with a large front garden providing privacy and ample off-street parking. The extensive grounds on which the property is set, which extends to approximately 0.4 acres, offers a tranquil outdoor space with mature trees and shrubs. The size of the plot presents a fantastic opportunity for further development, subject to the necessary planning permissions.
Property Features
Gas Central Heating
Front Garden with Drive, Drive way for 2 cars
1 receptions
Front Garden, Rear Garden, Greenhouse
Floorplan
(select image for larger view)
Energy Performance Certificate
(select image for larger view)
Location















